GPN1 40.5kV Removable Metal-clad Enclosed Switchgear
GPN1-40.5kV removable AC metal-clad switchgear (short for switchgear as below) applies to 40.5kV, 3 phase, AC and 50/60Hz electrical power network for receiving and distributing power energy and also for control, monitor and protection. It is applicable in general power system and occasions with frequent operation.
- Overview
- Recommended Products
GPN1-40.5kV removable AC metal-clad switchgear (short for switchgear as below) applies to 40.5kV, 3 phase, AC and 50/60Hz electrical power network for receiving and distributing power energy and also for control, monitor and protection. It is applicable in general power system and occasions with frequent operation. The product conforms to GB 3906 “3~35kV AC Metal Enclosed Switchgear”, GB/T 11022 “The common technical clauses of High Voltage Switchgear and controlgear Standard”, DL/T 404-1997 “Order Technical term of Indoor AC High Voltage Switchgear” and IEC-298 “1~52kV AC Metal Enclosed Switchgear and Controlgear standard”.

| Rated frequency | 50/60Hz |
| Rated voltage | 36/38/40.5kV |
| Rated current | 1250~2500A |
| Rated short circuit breaking current | 25, 31.5kA |
| 4s Rated short time withstand current | 25, 31.5kA |
| Rated short circuit making current (peak) | 63, 80kA |
| Rated peak withstand current(peak) | 63, 80kA |
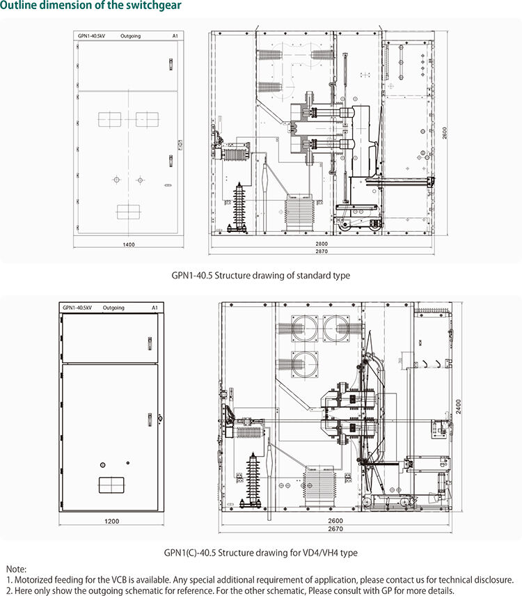
| Outline dimension(W×D×H) | 1400×2800×2600 (GPN1 type), 1200×2600×2400 (for VD4/HD4 type) |
| Protection degree | IP3X (compartment IP2X) |
| Compliance | Meets international safety standards such as ISO, IEEE |

The switchgear divides into enclosure and handcart, the enclosure is made of aluminum-zinc plated steel sheet after processed by CNC machine and multi-bending, then is assembled with bolts. So it has strong mechanical strength and can guarantee the neatness and good appearance. It consist of relay compartment, handcart compartment, cable compartment, protection degree is IP2X when CB handcart is on opening and testing position.
The switchgear is metal-clad removable type, main circuit adopts composite insulation processing, emergency spreading to other parts. CT and earthing switch are mounted in cable compartment and busbar compartment. The protection degree of enclosure is IP3X, the protection and large space for several cables. The structural design of new completely insulated VCB or SF6 CB and spring operating mechanism is integrated console model with such excellence of well exchange and simply change.
Ambient temperature: -25℃~+45℃, daily average: ≤35℃
Altitude: 1000m(Standard), can up to 4500m for special ordering
Relative humidity: daily average ≤95%, monthly average ≤90%
Earthquake intensity: ≤8 degree
Applicable occasions should be free from corrosives, inflammables and vapor.




GreenPower provides professional smart switchgear solutions. Contact us immediately for free consultation and quotation. Our professional team will provide you with full service and technical support throughout the process.
Email: [email protected]
Tel: +86-18989782765
Fax: 057785500968
